PROJEKTE
Hier finden Sie eine Übersicht unserer aktuellen bzw. bereits abgeschlossenen Projekte.
71065 Sindelfingen
- Mehrfamilienhaus mit Gewerbeeinheit
- Gesamtvolumen ca. 2.500 m2

Neubau 17 Eigentumswohnungen direkt unterhalb der Burgruine in
74189 Weinsberg
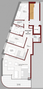
4 Zimmer-Wohnung 108,87 qm (Wohnung 1)
Bad, sep. WC, Abstellraum
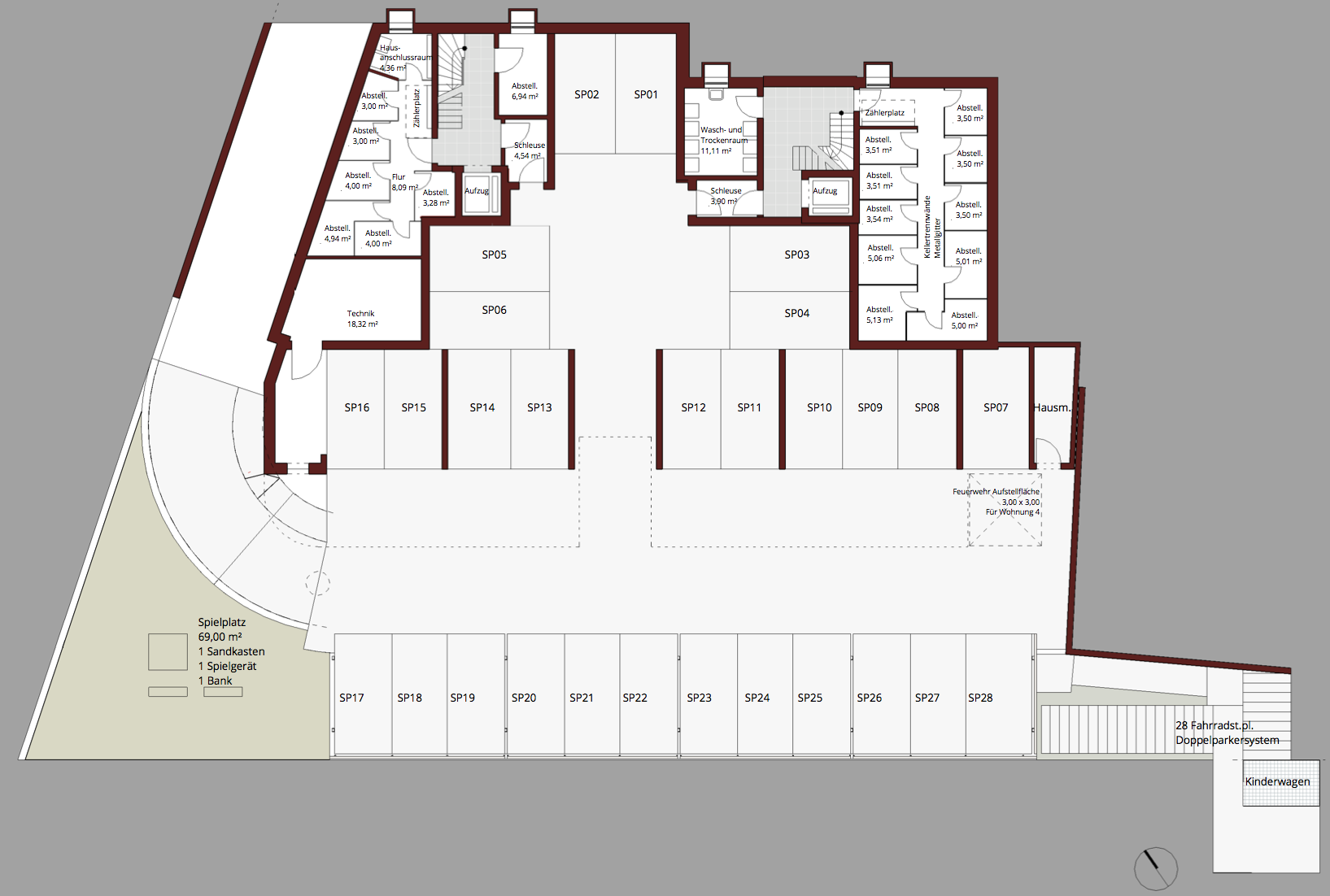
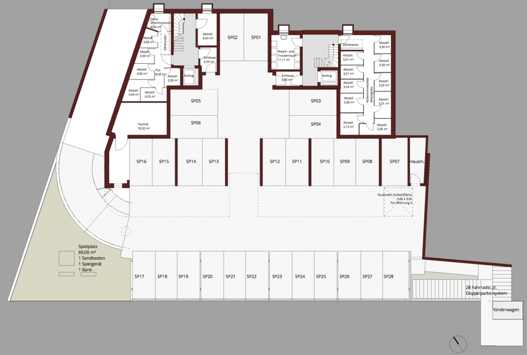
Balkon, Kellerabstellraum
Kaufpreis 458.000,– €
Tiefgaragenstellplatz: EUR 22.000,–
Außenstellplatz: EUR 15.000,–
Wohnen/Essen/Küche 34,13 qm
Schlafen 15,48 qm
Kind 1 12,03 qm
Kind 2 11,03 qm
Bad 6,19 qm
WC/WaMa 2,99 qm
Abstellraum 3,07 qm
Flur 15,85 qm
Balkon 8,08 qm
Gesamt 108,87 qm
3 Zimmer-Wohnung 90,76 qm (Wohnung 2)
Bad, sep. WC, Abstellraum
Balkon, Kellerabstellraum
Kaufpreis 356.000,– €
Tiefgaragenstellplatz: EUR 22.000,–
Außenstellplatz: EUR 15.000,–
Wohnen/Essen 25,51 qm
Küche 5,34 qm
Schlafen 16,84 qm
Kind 10,29 qm
Bad 7,45 qm
WC 3,36 qm
Abstellraum 1,76 qm
Flur 13,13 qm
Balkon 7,08 qm
Gesamt 90,76 qm
4 Zimmer-Wohnung 106,78 qm (Wohnung 3)
Bad, sep. WC, Abstellraum
Balkon, Kellerabstellraum
Kaufpreis 417.000,– €
Tiefgaragenstellplatz: EUR 22.000,–
Außenstellplatz: EUR 15.000,–
Wohnen/Essen/Küche 36,18 qm
Schlafen 17,74 qm
Kind 1 12,01 qm
Kind 2 10,27 qm
Bad 7,10 qm
WC/WaMa 2,43 qm
Abstellraum 2,27 qm
Diele/Flur 9,95 qm
Balkon 8,82 qm
Gesamt 106,78 qm
2 Zimmer-Wohnung 56,90 qm (Wohnung 4)
Bad
Balkon
Kellerabstellraum
Kaufpreis 245.000,– €
Außenstellplatz 15.000,– €
Wohnen/Essen/Küche 28,73 qm
Schlafen 13,51 qm
Bad 3,53 qm
Flur 3,06 qm
Balkon 8,06 qm
Gesamt 56,90 qm
2 Zimmer-Wohnung 52,04 qm (Wohnung 5)
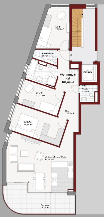
4 Zimmer-Wohnung 108,64 qm (Wohnung 6)
Bad, sep. WC, Abstellraum
Terrasse, Kellerabstellraum
Kaufpreis 462.000,– €
Tiefgaragenstellplatz: EUR 22.000,–
Außenstellplatz: EUR 15.000,–
Wohnen/Essen/Küche 34,13 qm
Schlafen 15,48 qm
Kind 1 12,03 qm
Kind 2 11,03 qm
Bad 6,19 qm
WC/WaMa 2,76 qm
Abstellraum 3,07 qm
Flur 15,85 qm
Terrasse 8,08 qm
Gesamt 108,64 qm
3 Zimmer-Wohnung 90,77 qm (Wohnung 7)
Bad, sep. WC, Abstellraum
Terrasse, Kellerabstellraum
Kaufpreis 360.000,– €
Tiefgaragenstellplatz: EUR 22.000,–
Außenstellplatz: EUR 15.000,–
Wohnen/Essen 25,51 qm
Küche 5,34 qm
Schlafen 16,84 qm
Kind 10,29 qm
Bad 7,45 qm
WC 3,36 qm
Abstellraum 1,76 qm
Flur 13,13 qm
Terrasse 7,08 qm
Gesamt 90,77 qm
4 Zimmer-Wohnung 106,78 qm (Wohnung 8)
Bad, sep. WC, Abstellraum
Terrasse, Kellerabstellraum
Kaufpreis 422.000,– €
Tiefgaragenstellplatz: EUR 22.000,–
Außenstellplatz: EUR 15.000,–
Wohnen/Essen/Küche 36,18 qm
Schlafen 17,74 qm
Kind 1 12,01 qm
Kind 2 10,27 qm
Bad 7,10 qm
WC/WaMa 2,43 qm
Abstellraum 2,27 qm
Diele/Flur 9,95 qm
Terrasse 8,82 qm
Gesamt 106,78 qm
2 Zimmer-Wohnung 56,90 qm (Wohnung 9)
Bad
Balkon
Kellerabstellraum
Kaufpreis 247.000,– €
Außenstellplatz 15.000,– €
Wohnen/Essen/Küche 28,73 qm
Schlafen 13,51 qm
Bad 3,53 qm
Flur 3,06 qm
Balkon 8,06 qm
Gesamt 56,90 qm
2 Zimmer-Wohnung 51,94 qm (Wohnung 10)
4 Zimmer-Wohnung 108,64 qm (Wohnung 11)
Bad, sep. WC, Abstellraum
Balkon, Kellerabstellraum
Kaufpreis 462.000,– €
Tiefgaragenstellplatz: EUR 22.000,–
Außenstellplatz: EUR 15.000,–
Wohnen/Essen/Küche 34,13 qm
Schlafen 15,48 qm
Kind 1 12,03 qm
Kind 2 11,03 qm
Bad 6,19 qm
WC/WaMa 2,76 qm
Abstellraum 3,07 qm
Flur 15,85 qm
Balkon 8,08 qm
Gesamt 108,64 qm
3 Zimmer-Wohnung 90,76 qm (Wohnung 12)
Bad, sep. WC, Abstellraum
Balkon, Kellerabstellraum
Kaufpreis 362.000,– €
Tiefgaragenstellplatz: EUR 22.000,–
Außenstellplatz: EUR 15.000,–
Wohnen/Essen 25,51 qm
Küche 5,34 qm
Schlafen 16,84 qm
Kind 10,29 qm
Bad 7,45 qm
WC 3,36 qm
Abstellraum 1,76 qm
Flur 13,13 qm
Balkon 7,08 qm
Gesamt 90,76 qm
4 Zimmer-Wohnung 106,78 qm (Wohnung 13)
Bad, sep. WC, Abstellraum
Balkon, Kellerabstellraum
Kaufpreis 424.000,– €
Tiefgaragenstellplatz: EUR 22.000,–
Außenstellplatz: EUR 15.000,–
Wohnen/Essen/Küche 36,18 qm
Schlafen 17,74 qm
Kind 1 12,01 qm
Kind 2 10,27 qm
Bad 7,10 qm
WC/WaMa 2,43 qm
Abstellraum 2,27 qm
Diele/Flur 9,95 qm
Balkon 8,82 qm
Gesamt 106,78 qm
2 Zimmer-Wohnung 56,90 qm (Wohnung 14)
Bad
Balkon
Kellerabstellraum
Kaufpreis 249.000,– €
Außenstellplatz 15.000,– €
Wohnen/Essen/Küche 28,73 qm
Schlafen 13,51 qm
Bad 3,53 qm
Flur 3,06 qm
Balkon 8,06 qm
Gesamt 56,90 qm
2 Zimmer-Wohnung 51,94 qm (Wohnung 15)
97980 Bad Mergentheim, Erlenbachtal
Infos folgen.
Infos folgen.
Infos folgen.
Infos folgen.






















